|松下KMEW纤维水泥外墙板

联系电话:18337905551

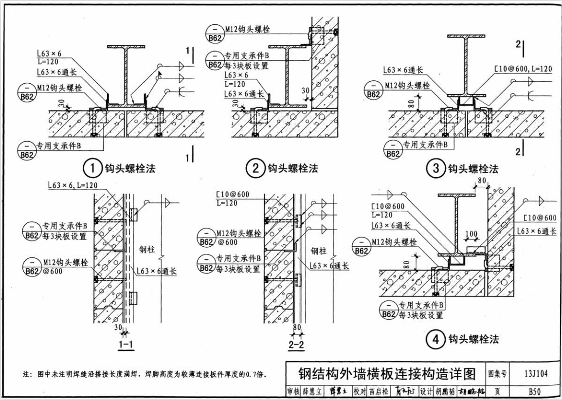
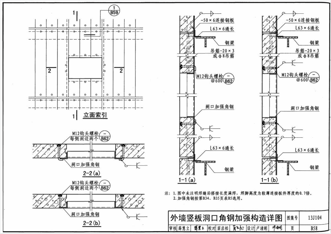
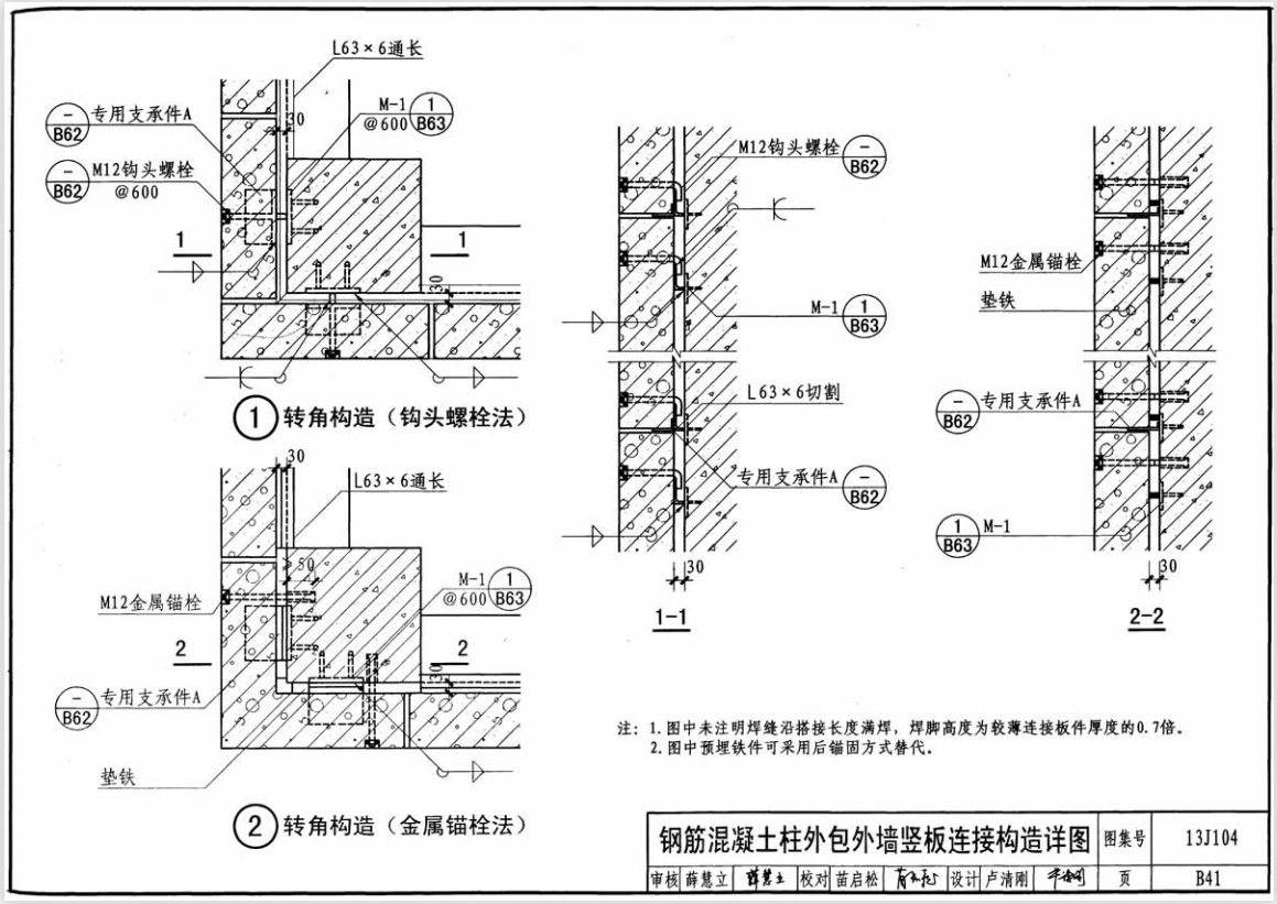
ALC板施工图集:蒸压加气混凝土砌块、板材构造13J104

2023-09-11 09:00

        弘张建材在河南诸多项目运行中,发现无论是板材堆放,运输还是安装中,都有很多不规范的地方,那么,我们肯定需要一本知道我们技术的图集,今天弘张建材就给大家分享一下ALC板最新的图集。(此部分为ALC板材图集,如需完整图集,请联系弘张建材183-3790-5551领取)

1.png2.png3.png4.png5.png6.png7.png8.png9.png10.png11.png12.png13.png14.png15.png16.png17.png20.png21.png24.png25.png26.png31.png32.png18.png30.png28.png19.png27.png35.png34.png33.png29.png22.png23.png

(此部分为ALC板材图集,如需完整图集,请联系弘张建材:183-3790-5551领取)